Verkehrsgünstig gelegene, vielseitig nutzbare Bürofläche in Werl

Objekt-Nr. 20054-2761 – Büro/Praxis zur Miete in Werl


Ansprechpartner

Berthold Schmitz

Telefon: +49 2267 880180
Telefax: +49 2267 880181

info@schmitz-immobilienservice.de

Kontakt aufnehmen

Eckdaten

Miete zzgl. NK 1.160 €
Nebenkosten 350 €
Miete inkl. NK 1.510 €
Kaution 2.320 €
Adresse 59457 Werl

Beschreibung

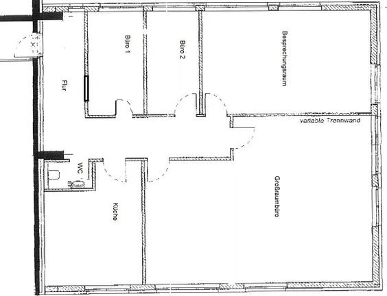
Das gepflegte Objekt bietet eine Gesamtfläche von etwa 150 m². Die Fläche kann als Büro, Praxis oder Ausstellungsfläche genutzt werden.
Die Fläche teilt sich auf in ein Großraumbüro das durch eine variable Trennwand noch ein zusätzliches Büro oder ein Besprechungsraum schaffen kann. Außerdem befindet sich auf der ca. 150 m² großen Fläche ein Pausenraum mit Küche, ein WC, ein Flur und 2 weitere Büros.

Sonstiges

Wir bitten sich bei Interesse mit einer s c h r i f t l i c h e n Anfrage über unsere Homepage oder das Internetportal an uns zu wenden. Wir senden Ihnen dann umgehend ein Exposé per Email zu. Darin enthalten sind die Anschrift der Immobilie und Innenfotos.
Wir bitten Sie, sich anhand dieser Möglichkeit einen ersten Eindruck zu verschaffen. Bei näherem Interesse zeigen wir Ihnen die Immobilie gerne bei einer persönlichen Besichtigung.

Lagebeschreibung

Die Räumlichkeiten befinden sich an der viel befahrenen Hammer Straße, die eine der wichtigsten Ausfallstraßen von Werl darstellt. Bis zur Anschlussstelle zur A445 sind es lediglich ca. 1,2 km

Mieterprovision zzgl. MwSt

2.38 MM

Ausstattung

Nutzfläche ca. 410 m²
Gesamtfläche ca. 150 m²
Bürofläche ca. 150 m²
Baujahr 1996
Befeuerungsart Gas
Heizungsart Zentralheizung
Provisionspflichtig
verfügbar ab nach Vereinbarung
Zustand gepflegt

Energieverbrauchsausweis

Endenergieverbrauch-Strom 15 kWh/(m²*a)
Endenergieverbrauch-Wärme 76 kWh/(m²*a)
Befeuerungsart Gas
Heizungsart Zentralheizung
Wesentlicher Energieträger Gas
Baujahr (Energieausweis) 1996
Gültig bis 20.10.2029
Energieausweis Ausstellungsdatum 21.10.2019

0200400+


Objekt-Nr. 20054-2761 – Büro/Praxis zur Miete in Werl

Zurück zu den Immobilienangeboten

Erfolg! Vielen Dank für Ihre Bewertung.

Fehler! Bitte füllen Sie alle Felder aus.