Schöne ca. 134,9 m² große 3-Zimmer-Maisonettewohnung mit Dachatelier und Westloggia in Garenfeld!
Ansprechpartner
Berthold Schmitz
Telefon: +49 2267 880180
Telefax: +49 2267 880181
info@schmitz-immobilienservice.de
Kontakt aufnehmenEckdaten
| Miete zzgl. NK 970 € |
| Nebenkosten 100 € |
| Miete inkl. NK 1.070 € |
| Kaution 1.940 € |
| Heizkosten 150 € |
Beschreibung
Die Wohnung liegt in Hagen- Garenfeld
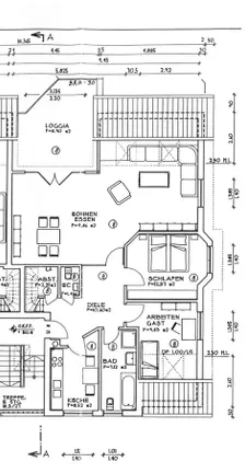
Nachdem Sie Ihr Fahrzeug entweder auf dem Außenstellplatz oder der Garage am Haus abgestellt haben, betreten Sie das gepflegte Mehrfamilienhaus und gelangen über das Treppenhaus in die schöne, ca. 134,9 m² große 3-Zimmer-Maisonettewohnung im Dachgeschoss.
Beim Betreten der Wohnung befinden Sie sich in der zentralen Diele, von der aus alle Räume erreichbar sind. Gleich zu Ihrer linken Seite führt eine Treppe nach oben in den ausgebauten Dachboden. Unterhalb der Treppe befindet sich ein praktischer Abstellraum.
Das Dachatelier besticht durch ihre Großzügigkeit und den schönen Weitblick bis zur Hohensyburg. Hier wird ein neuer Vinylboden in der Farbe Ihrer Wahl verlegt der ideale Raum, um sich individuell zu entfalten, sei es als großzügiges Schlafzimmer, separate, Arbeitsbereich oder kreativer Hobbyraum.
Zurück im unteren Bereich der Wohnung erreichen Sie rechts neben der Treppe das Gäste-WC. Entlang der Diele gelangen Sie auf der linken Seite in den großzügigen Wohn- und Essbereich. Hier finden sowohl eine große Wohnlandschaft als auch ein Esstisch bequem Platz. Von diesem Raum aus haben Sie direkten Zugang zur sonnigen Dachloggia mit Westausrichtung perfekt, um die Abendsonne in ruhiger Atmosphäre zu genießen.
Neben dem Wohn-/ und Essbereich befindet sich das Schlafzimmer, das ebenfalls mit einem neuen Vinylboden ausgestattet wird. Gleiches gilt für das danebenliegende Kinder-/, Gäste-/ oder Arbeitszimmer, das flexibel genutzt werden kann. Rechts daneben liegt das moderne Tageslichtbad mit Dusche und Badewanne. Direkt anschließend befindet sich die Küche, in der eine Einbauküche vorhanden ist, die zur kostenfreien Nutzung zur Verfügung gestellt wird.
Zur Wohnung gehören selbstverständlich auch ein separater Kellerraum, ein gemeinschaftlicher Fahrradkeller sowie ein Wasch-/ und Trockenraum.
Sonstiges
Energieausweis: Verbrauchsausweis
Gültig von: 06.10.2025
Gültig bis: 05.10.2035
Endenergieverbrauch Wärme: 146 kWh/(m²a)
Energieeffizienzklasse: E
Baujahr: 1994
Baujahr Wärmeerzeuger: 1994
Wesentlicher Energieträger: Heizöl
Ausstattungsbeschreibung
Etage: 2. Obergeschoss rechts
Lage: Dachgeschoss
Fassade: 2020 neuer Anstrich
Fenster: Kunststofffenster ISO-Verglasung, Sprossenfenster in Küche und Bad
Zimmertüren / Zargen: Holz
Dachloggia: Ja mit Westausrichtung und Stromanschluss
Internet: Glasfaseranschluss ab 2026 verfügbar
Elektrik: Mit Kippschalter. + FI-Schutzschalter
Heizungsart: Ölzentralheizung
Fernsehen: Satellit
Rollläden: Ja, Schlafzimmer, Kinderzimmer, Hobbyraum elektrisch. Alle weiteren Räume verfügen über manuelle Rollläden
Warmwasser: Über Durchlauferhitzer
Bad: Tageslichtbad mit Dusche und Badewanne
Gäste-WC: Ja
Abstellraum: Ja
Bodenbelag: Wohnbereich, Küche und Bad Fliesen Schlafräume Teppich und Spitzboden Teppich aktuell, Neuer Vinylboden wird verlegt
Stellplatz: Ja, 30 EUR /mtl.
Keller: Ja
Fahrradkeller: Ja
Waschmaschinenanschluss: Waschkeller mit Trockenmöglichkeit
Treppenhausreinigung: Extern von einem Mieter aus dem Haus
Winterdienst: Im Wechsel unter den Mietern
Bezugszustand: Frisch weiß gestrichen
Anbindungen: ÖPNV / HBF / BAB A45: 2 min. / 9 km / 4 min.
Lagebeschreibung
Hagen- Garenfeld
Zwischen dörflicher Idylle und modernem Wohnen im Hagener Norden liegt Garenfeld, umgeben von den Flussläufen der Lenne und der Ruhr. Die Autobahnen A1 und A45 sind in wenigen Minuten erreichbar und bieten eine gute Anbindung.
Das Haus befindet sich in einer ruhigen Nebenstraße. Busverbindungen nach Hagen, Hohenlimburg und Boele sind vorhanden (Linie 524 im 30-Minuten-Takt, Linie 536 etwa stündlich). Kindergarten und Grundschule liegen im nahegelegenen Berchum, weiterführende Schulen in Hagen und Hohenlimburg.
Hier genießen Sie Ruhe, Natur und eine dennoch schnelle Erreichbarkeit der umliegenden Städte.
Ausstattung
| Adresse 58099 Hagen - Garenfeld |
| Wohnfläche ca. 134,90 m² |
| Zimmer 3 |
| Abstellraum |
| Anzahl Badezimmer 1 |
| Anzahl Etagen 2 |
| Anzahl Loggias 1 |
| Anzahl Schlafzimmer 2 |
| Anzahl Stellplätze 1 |
| Anzahl Wohneinheiten 8 |
| Kategorie Standard |
| Bad mit Dusche, Fenster |
| Baujahr 1994 |
| Befeuerungsart Öl |
| Boden Fliesen |
| Dachboden |
| Küche Einbauküche |
| Rollladen |
| Stellplätze 1 |
| Stellplatzmiete 30 € |
| Stellplatzart Freiplatz |
| Unterkellert |
| verfügbar ab sofort |
| Wasch/Trockenraum |
| Zustand gepflegt |
Energieverbrauchsausweis
| Endenergieverbrauch 146 kWh/(m²*a) |
| Befeuerungsart Öl |
| Wesentlicher Energieträger Öl |
| Baujahr (Energieausweis) 1994 |
| Energieeffizienzklasse E |
| Gültig bis 05.10.2035 |
| Energieausweis 2014 |
| Energieausweis Ausstellungsdatum 2025-10-06 |
0200400+
Zurück zu den Immobilienangeboten
Kontakt aufnehmen
Schöne ca. 134,9 m² große 3-Zimmer-Maisonettewohnung mit Dachatelier und Westloggia in Garenfeld!