*PROVISIONSFREI* Ca. 2.099 m² Lager/Werkstatt/Büroflächen in Dortmund zu vermieten!

Objekt-Nr. 91927-7289 – Halle/Lager/Produktion zur Miete in Dortmund


Ansprechpartner

Berthold Schmitz

Telefon: +49 2267 880180
Telefax: +49 2267 880181

info@schmitz-immobilienservice.de

Kontakt aufnehmen

Eckdaten

Miete pro m² 3,90 €
Adresse 44147 Dortmund - Innenstadt-Nord
Nutzfläche ca. 2,10 m²
Gesamtfläche ca. 2,10 m²
Lagerfläche ca. 1,51 m²

Beschreibung

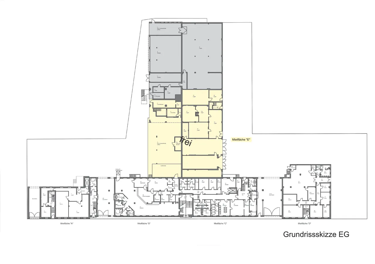
Zur Vermietung steht folgender kompletter Gebäudeteil an:

Erdgeschoss:
Bürofläche E ca.1.050,00 m²

1. Obergeschoss:
Bürofläche J ca. 574,00 m²

2. Obergeschoss:
Büro/Lagerfläche Q ca. 457,00 m²

Gesamtfläche: ca. 2.099,00 m²

Ausstattungsbeschreibung

Büroflächen: EUR 6,90/m² zzgl. Nebenkosten und MwSt.

Lager/Werkstattflächen EUR 3,90/m² zzgl. Nebenkosten und MwSt.

Je nach Aufwand und Ausstattung.

Alle Preise verstehen sich zzgl. der gesetzlichen Mehrwertsteuer.

Lagebeschreibung

Das Objekt befindet sich im nördlichen Stadtgebiet am Dortmunder Hafen und ist ca. 1,5 km von der Dortmunder Innenstadt entfernt. Am Objekt befindet sich eine U-Bahnhaltestelle und Anbindungen zu Autobahnen sind ebenfalls gegeben.

Ausstattung

Bürofläche ca. 574 m²
Anzahl Etagen 3
Anzahl Stellplätze 2
Baujahr 1928
Befeuerungsart Gas, Elektro
Provisionspflichtig
Stellplätze 1
Garagenanzahl 1
Stellplatzart Garage, Freiplatz
verfügbar ab sofort
Zustand modernisiert

Energiebedarfsausweis

Endenergiebedarf-Strom 48 kWh/(m²*a)
Endenergiebedarf-Wärme 286 kWh/(m²*a)
Befeuerungsart Gas, Elektro
Wesentlicher Energieträger Strom Gas
Baujahr (Energieausweis) 1928
Gültig bis 21.09.2024
Energieausweis 2014

0200400+


Objekt-Nr. 91927-7289 – Halle/Lager/Produktion zur Miete in Dortmund

Zurück zu den Immobilienangeboten

Erfolg! Vielen Dank für Ihre Bewertung.

Fehler! Bitte füllen Sie alle Felder aus.