Helle Dachgeschosswohnung mit Wohlfühlfaktor – 3 Zimmer & Balkon in ruhiger Lage

Objekt-Nr. 20049-3640 – Wohnung zum Kauf in Erkelenz


Ansprechpartner

Berthold Schmitz

Telefon: +49 2267 880180
Telefax: +49 2267 880181

info@schmitz-immobilienservice.de

Kontakt aufnehmen

Eckdaten

Kaufpreis 199.000 €
Adresse 41812 Erkelenz
Wohnfläche ca. 62 m²
Zimmer 3

Beschreibung

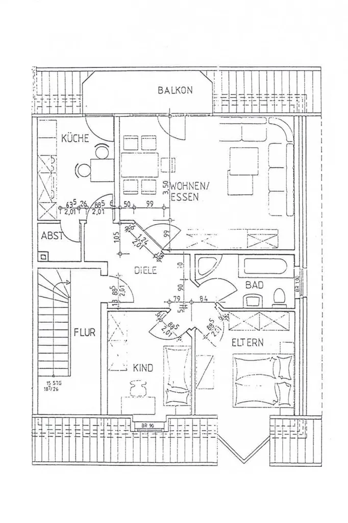
Diese großzügig geschnittene Dachgeschosswohnung vereint Licht, Raum und Funktionalität auf rund 62 m² – ideal für Paare, kleine Familien oder Kapitalanleger, die nach einer gepflegten und gut durchdachten Immobilie suchen.

Zwei Schlafzimmer schaffen Rückzugsorte mit Ruhepotenzial – perfekt für erholsame Nächte, ein Homeoffice oder das Kinderzimmer. Der offene Wohn- und Essbereich überzeugt durch seine Helligkeit und lädt zum Entspannen, Kochen und gemeinsamen Leben ein. Der angeschlossene Balkon erweitert den Wohnraum ins Freie – ein idealer Platz für den ersten Kaffee am Morgen oder einen gemütlichen Abend zu zweit.

Das Badezimmer bietet mit Dusche und Badewanne alle Annehmlichkeiten für den Alltag – funktional und dennoch komfortabel. Moderne Kunststofffenster sorgen für viel Licht, eine gute Wärmedämmung und einen gepflegten Gesamteindruck.

Ein besonderes Plus: Zur Wohnung gehört ein Garagenstellplatz, der nicht nur für bequemes Parken sorgt, sondern auch den Alltag deutlich erleichtert.

Die Wohnung ist derzeit für 545 € Kaltmiete vermietet, hinzu kommen 60 € monatlich für die Garage – eine solide Grundlage für Eigennutzer mit Zukunftsplänen oder Anleger mit Blick auf nachhaltige Vermietbarkeit.

Ausstattungsbeschreibung

- Großzügige Dachgeschosswohnung mit 62 m² Wohnfläche, perfekt zugeschnitten auf Paare oder die kleine Familie
- Zwei Schlafzimmer – Rückzugsorte mit Ruhepotenzial
- Heller Wohn- und Essbereich – offen gestaltet, mit viel Tageslicht für ein angenehmes Wohnambiente
- Balkon – für entspannte Stunden an der frischen Luft
- Kunststofffenster – pflegeleicht, energiesparend und lichtdurchflutet
- Badezimmer mit Dusche und Badewanne – praktisch & komfortabel vereint
- Ein Garagenstellplatz gehört zur Wohnung. Optional steht ein weiterer Außenstellplatz zur Verfügung und rundet das Angebot ab.
- Kaltmiete: 545€ zzgl. 60€ Garage

Eine Wohnung, die sowohl funktional als auch gemütlich überzeugt – ideal für Paare, kleine Familien oder alle, die großzügiges Wohnen schätzen.

Auf Wunsch der aktuellen Mieter stehen nur wenige Innenaufnahmen der Wohnung zur Verfügung. Wir bitten um Verständnis.

Lagebeschreibung

Die Lage besticht durch eine angenehme Ruhe und gleichzeitig eine hervorragende Erreichbarkeit. Einkaufsmöglichkeiten, von Supermärkten bis hin zu Bäckereien, sind bequem zu Fuß erreichbar und erleichtern den Alltag spürbar. Das Zentrum der Stadt liegt nur wenige Gehminuten entfernt und lädt zum Flanieren und Verweilen ein.

Kindertagesstätten und Schulen unterschiedlicher Bildungsstufen befinden sich in unmittelbarer Umgebung, was besonders Familien zugutekommt. Die Anbindung an den öffentlichen Nahverkehr ist optimal: Eine Bushaltestelle liegt direkt vor der Haustür, der Bahnhof ist in kurzer Zeit erreichbar und verbindet die Stadt mit umliegenden Regionen.

Für Autofahrer ist die nächste Autobahnauffahrt schnell zugänglich, was die Mobilität zusätzlich erhöht. Trotz dieser Nähe zur Infrastruktur zeichnet sich die Umgebung durch eine ruhige Atmosphäre aus, die durch wenig Verkehr und viel Grün geprägt ist. Hier verbinden sich Bequemlichkeit und Lebensqualität auf ideale Weise.

Käuferprovision zzgl. MwSt

3,57% inkl. MwSt.

Ausstattung

Anzahl Badezimmer 1
Anzahl Schlafzimmer 2
Baujahr 1995
Befeuerungsart Gas
Unterkellert
Verkaufstatus offen
Zustand gepflegt

Energieverbrauchsausweis

Endenergieverbrauch 98,50 kWh/(m²*a)
Befeuerungsart Gas
Wesentlicher Energieträger GAS
Baujahr (Energieausweis) 1995
Energieeffizienzklasse C
Gültig bis 19.11.2030
Energieausweis 2014

0200400+


Objekt-Nr. 20049-3640 – Wohnung zum Kauf in Erkelenz

Zurück zu den Immobilienangeboten

Erfolg! Vielen Dank für Ihre Bewertung.

Fehler! Bitte füllen Sie alle Felder aus.