3-Zimmer-Wohnung in Werl

Objekt-Nr. 20054-3031 – Wohnung zur Miete in Werl


Ansprechpartner

Berthold Schmitz

Telefon: +49 2267 880180
Telefax: +49 2267 880181

info@schmitz-immobilienservice.de

Kontakt aufnehmen

Eckdaten

Miete zzgl. NK 580 €
Nebenkosten 190 €
Miete inkl. NK 770 €
Kaution 1.160 €
Adresse 59457 Werl

Beschreibung

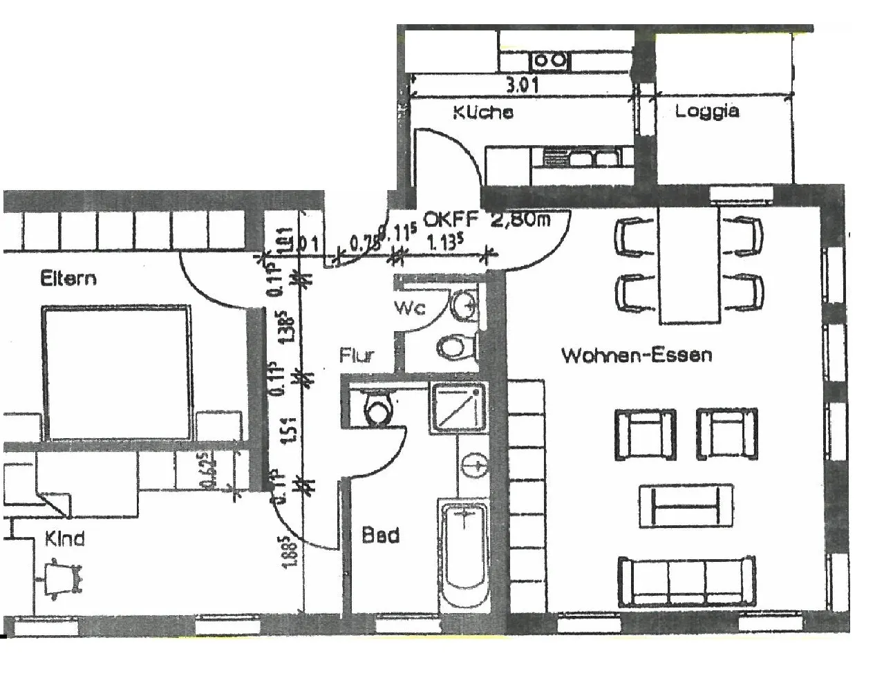
Wir bieten Ihnen eine helle und ansprechende 3-Zimmer-Wohnung, die sofort zum Wohlfühlen einlädt.
Herzstück ist das helle Wohn-Esszimmer, das mit modernem Laminat ausgelegt ist und viel Raum für Gestaltung bietet.
Die Wohnung verfügt über ein Schlafzimmer sowie ein weiteres Kinder- oder Arbeitszimmer.
Das Badezimmer lässt keine Wünsche offen: Es ist mit einer Dusche und einer Badewanne ausgestattet und besitzt zudem ein praktisches Fenster für optimale Belüftung.Ein großer Vorteil ist der zur Wohnung gehörende Stellplatz in der Tiefgarage, der Ihnen die tägliche Parkplatzsuche erspart.

Sonstiges

Exposé
Wir bitten sich bei Interesse mit einer s c h r i f t l i c h e n Anfrage über unsere Homepage oder das Internetportal an uns zu wenden. Wir senden Ihnen dann umgehend ein Exposé per Email zu. Darin enthalten sind die Anschrift der Immobilie und Innenfotos.
Wir bitten Sie, sich anhand dieser Möglichkeit einen ersten Eindruck zu verschaffen. Bei näherem Interesse zeigen wir Ihnen die Immobilie gerne bei einer persönlichen Besichtigung.

Lagebeschreibung

Die Wohnung befindet sich im 1. Obergeschoss eines gepflegten Mehrfamilienhauses im Herzen der Stadt Werl.

Ausstattung

Wohnfläche ca. 72 m²
Zimmer 3
Anzahl Etagen 2
Anzahl Stellplätze 1
Baujahr 1999
Befeuerungsart Gas
Lage im Objekt (Etage) 2
Stellplätze 1
Stellplatzart Freiplatz
verfügbar ab nach Vereinbarung
Zustand gepflegt

Energieverbrauchsausweis

Endenergieverbrauch 92 kWh/(m²*a)
Befeuerungsart Gas
Wesentlicher Energieträger Gas
Baujahr (Energieausweis) 1999
Energieeffizienzklasse C
Gültig bis 12.09.2028
Energieausweis 2014
Energieausweis Ausstellungsdatum 2018-09-12

0200400+


Objekt-Nr. 20054-3031 – Wohnung zur Miete in Werl

Zurück zu den Immobilienangeboten

Erfolg! Vielen Dank für Ihre Bewertung.

Fehler! Bitte füllen Sie alle Felder aus.